go to content

Planung für neues Feuerwehrgebäude in Breitenfeld/Rittschein

Bautechnik-Maturanten erstellen Entwurfs- und Einreichplanung für Feuerwehrhaus

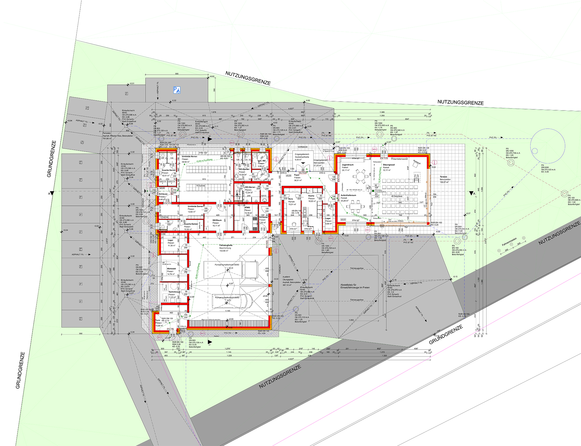
Der Ortsteil Breitenfeld an der Rittschein in der Gemeinde Riegersburg beabsichtigt ein neues Feuerwehrhaus zu errichten, da das alte Gebäude in der Ortsmitte keine Erweiterung erlaubt. Die Bautechnik-Maturanten Michaela Schwarz und Samuel Mirna hatten im Rahmen ihrer Diplomarbeit für die Neuplanung außerhalb des Ortes einige Besprechungen mit den Mitgliedern der örtlichen Feuerwehr HBI Florian Brandl, OBI Gerhard Heschl, BM Benjamin Ohner und LM Thomas Urschler.

Nach eingehenden Studien verschiedener Feuerwehrhäuser wurde ein modernes, Objekt mit funktionellen Zuordnungen entsprechend der Feuerwehrrichtlinie und auf dem aktuellen Stand der Technik entworfen. Besonders die architektonisch-spielerische Gestaltung stellte sich für die beiden Maturanten als Herausforderung dar.

Mit Unterstützung ihrer Betreuer AV Ulrike Hartler und Prof. Christoph Schermann konnte kürzlich ein gelungener Entwurfs- und Einreichplan mit Kostenschätzung und bauphysikalischer Berechnung an die Feuerwehr Breitenfeld a.d.R. übergeben werden. HBI Brandl bedankte sich bei der Übergabe sehr herzlich.

Weitere Bilder